Touko 1-storey
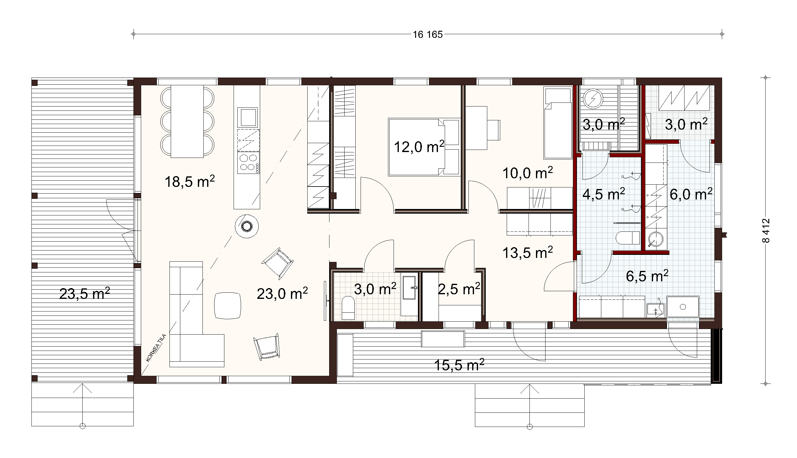
Honka Touko is an impressive-looking dream log house with an end window that highlights the landscape. The classic gable roof encounters modern details and, best of all, the floor plan is extremely compact. Many people dream of a high-ceiling living room and this house has just that. Together with large windows, this creates a strong feeling of being close to nature.
Touko is a versatile model – it is suitable for a detached house even if the plot is narrow in shape, or as a year-round holiday home on a beautiful landscape plot. The style can be easily adjusted with a roofed terrace and glazing bar windows; just pick the combination you prefer. Also two-storey version available - check here!
How can we help you?
Share your log home dreams with the nearest Honka representative. We will help you to realise them.
Get in touch 
			 
         
         
         
         
         
         
					 
					 
		
				